Добавить в закладки   Войти или зарегистрироваться
 
Среда, 29 апреля 2026, 23:10
 
  %
+0.1859   +0.1843
  74.6947   87.5928
 
 

Проходят публичные слушания о межевании

Общество
14.05.2013 19:02 2
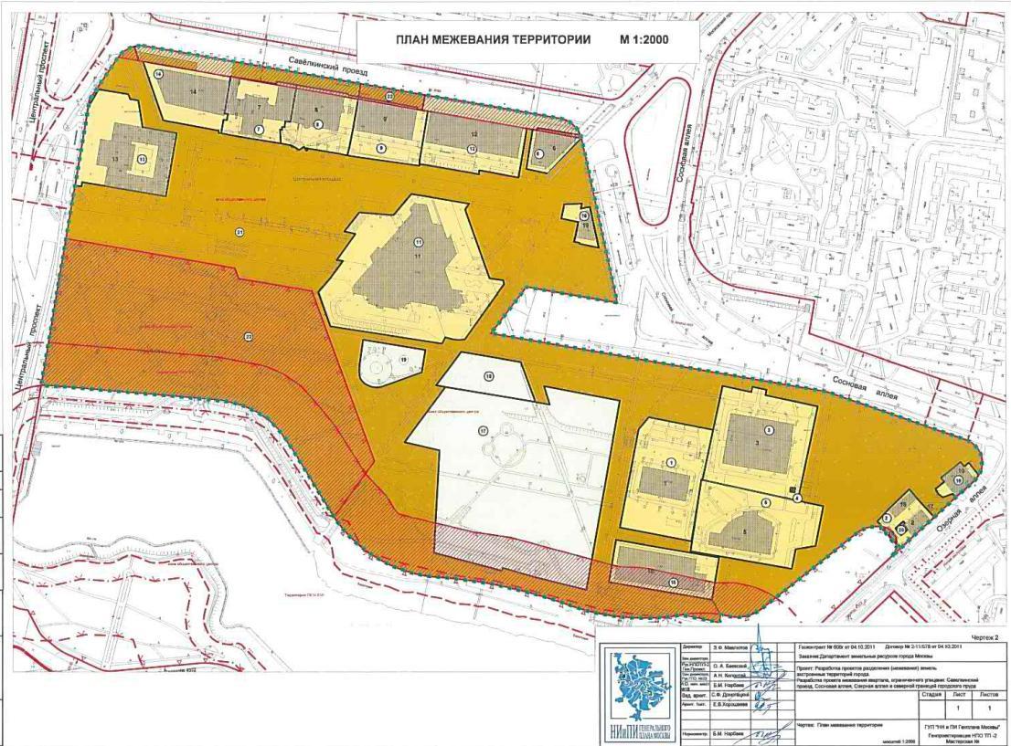
План межевания территории у городского пруда. Изображение: uprava-ms.ru

20 и 21 мая состоятся итоговые собрания по публичным слушаниям о границах двух кварталов города.

Как сообщается в управе района Савелки, проводятся публичные слушания проектов межевания двух кварталов Зеленограда: возле городского пруда и Никольского проезда. В связи с перспективой застройки земельных участков жителям района, также владельцам земельных участков, предложено рассмотреть и закрепить границы участков.

На публичных слушаниях предлагается установить границы застроенных и подлежащих застройке земельных участков. Первый находится между Савелкинским проездом, Сосновой аллеей, Озерной аллеей и северной границей городского пруда. Второй ограничен Московским проспектом, Ленинградским шоссе, Никольским проездом и границей водоохранной зоны реки Ржавки.

Информационные материалы по теме публичных слушаний предоставлены в фойе управы Савелки (корпус 311), около кабинета №104, с 6 по 16 мая. Также информационные материалы можно изучить на сайте управы Савелки.

Финальные собрания по слушаниям состоятся 20 и 21 мая в здании управы Савелки (корпус 311) в 19:00.

В период проведения публичных слушаний участники имеют право представить свои предложения и замечания по обсуждаемому проекту посредством:
  • записи предложений и замечаний в период работы экспозиции;
  • выступления на собрании участников публичных слушаний;
  • внесения записи в книгу (журнал) регистрации участвующих в собрании участников публичных слушаний;
  • подачи в ходе собрания письменных предложений и замечаний;
  • направления в течение недели со дня проведения собрания участников публичных слушаний письменных предложений, замечаний в окружную комиссию.
Номер контактного справочного телефона окружной комиссии: 8(499)736-44-83.

Почтовый адрес окружной комиссии: 124482, город Зеленоград, корпус 311.

Электронный адрес окружной комиссии: NeklyudovaNV@mos.ru.

Нажмите для просмотра в максимальном разрешении Нажмите для просмотра в максимальном разрешении

Обнаружив в тексте ошибку, выделите ее и нажмите Ctrl + Enter

[ ]



Последние новости рубрики «Общество»












Новости компаний











Самое обсуждаемое за месяц
Социальные сети